Etage Style
Etage Style
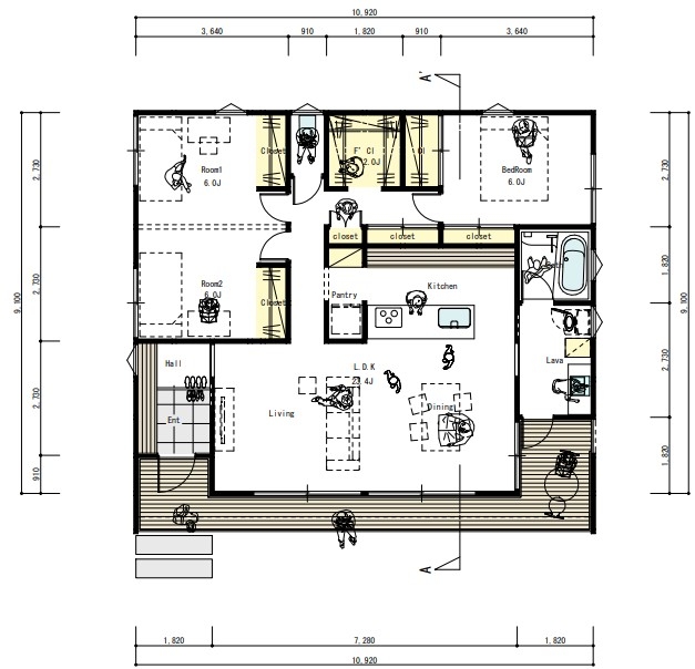
ワンフロアでつながる平屋
広々としたワンフロアで家族全員がつがり、無駄のない動線で快適に過ごせる平屋プランです。
たくさんの思い出を家族で共有できる、永く愛されるスタイルの家です。各部屋が近くにあることで家族の息づかいを感じることができ、コミュニケーションも円滑に。コンパクトながらも開放的な空間で、楽しい思い出が生まれます。
ファサード面はシンプルな箱型で開口部をシンメトーに配置しました。また、玄関ポーチとウッドデッがひと続きになっているのも特徴です。
プラン

内観・外観
















